Lagerhalle mit großzügigem Grundstück

31552 Rodenberg

Immobilie

    Lager mit Freifläche
    Baujahr: 1998

    • frei werdend
    • Steinboden
    • LKW-Zufahrt, Rolltor
    • gepflegt

    417,79 m²

    Fläche (ca.)

    k.A.

    Teilbare Fläche

    4.425 m²

    Grundstücksfl. (ca.)
    Preise & Kosten
    Energie

    Bausubstanz & Energieausweis

    Objektbeschreibung

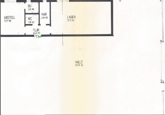
    Die Lagerhalle von ca. 417m² steht auf einem ca. 4.425m² großem Grundstück und befindet sich in einem Gewerbegebiet. Auf den Stirnseiten des Gebäudes sind jeweils 2 Rolltore mit den Maßen 4x4 Metern.

    Die Nutzung der Immobilie erfolgte durchgängig durch den Eigentümer.

    Ausstattung

    - Sanitärräume
    - Rolltore
    - Starkstrom
    - Gelände ist eingefriedetr ...

    Lage

    Anbieter dieser Immobilie

    Behome Immobilien

    Mauernstraße, 23
    29221 celle

    Ansprechpartner

    Frau Sehnaz Ediz